https://www.youtube.com/watch?v=-2G-KjiOYQg
Thiết kế nội thất đẹp – Văn phòng làm việc
Thông tin công trình
Dự án : Văn phòng
Địa điểm : Lạng Sơn
Diện tích : 23m2
Thực hiện : Vạn An Decor
Hoàn thành : 2025
Vạn An Decor là đơn vị thiết kế thi công nội thất đẹp có phong cách đa dạng và chuyên sâu về bố trí mặt bằng. Chúng tôi am hiểu vật liệu trong ngành để áp dụng thi công hoàn thiện nội thất “Chìa khóa trao tay” giúp khách hàng thực sự “tận hưởng không gian sống” trong ngôi nhà của mình.
Dưới đây là những hình ảnh về dự án thiết kế và thi công văn phòng theo phong cách hiện đại tại Bình Dương. Các bạn hãy cùng Vạn An Decor tìm hiểu về công trình này nhé.
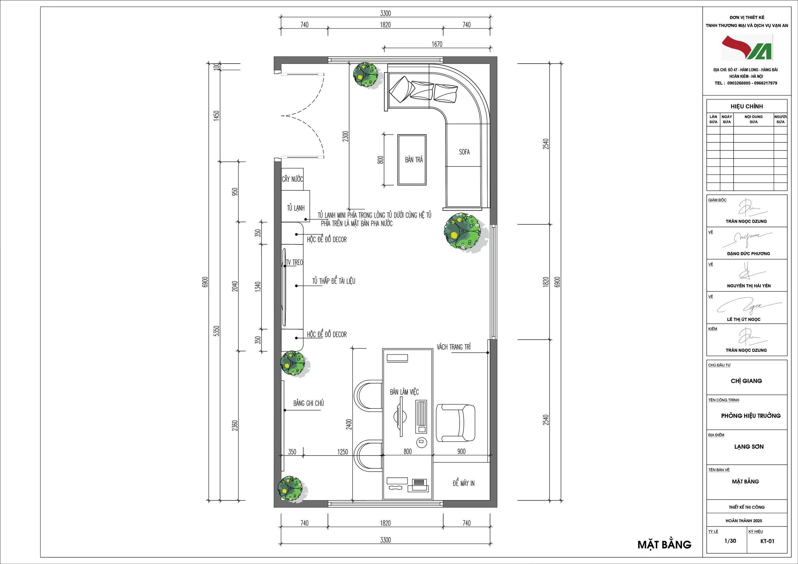
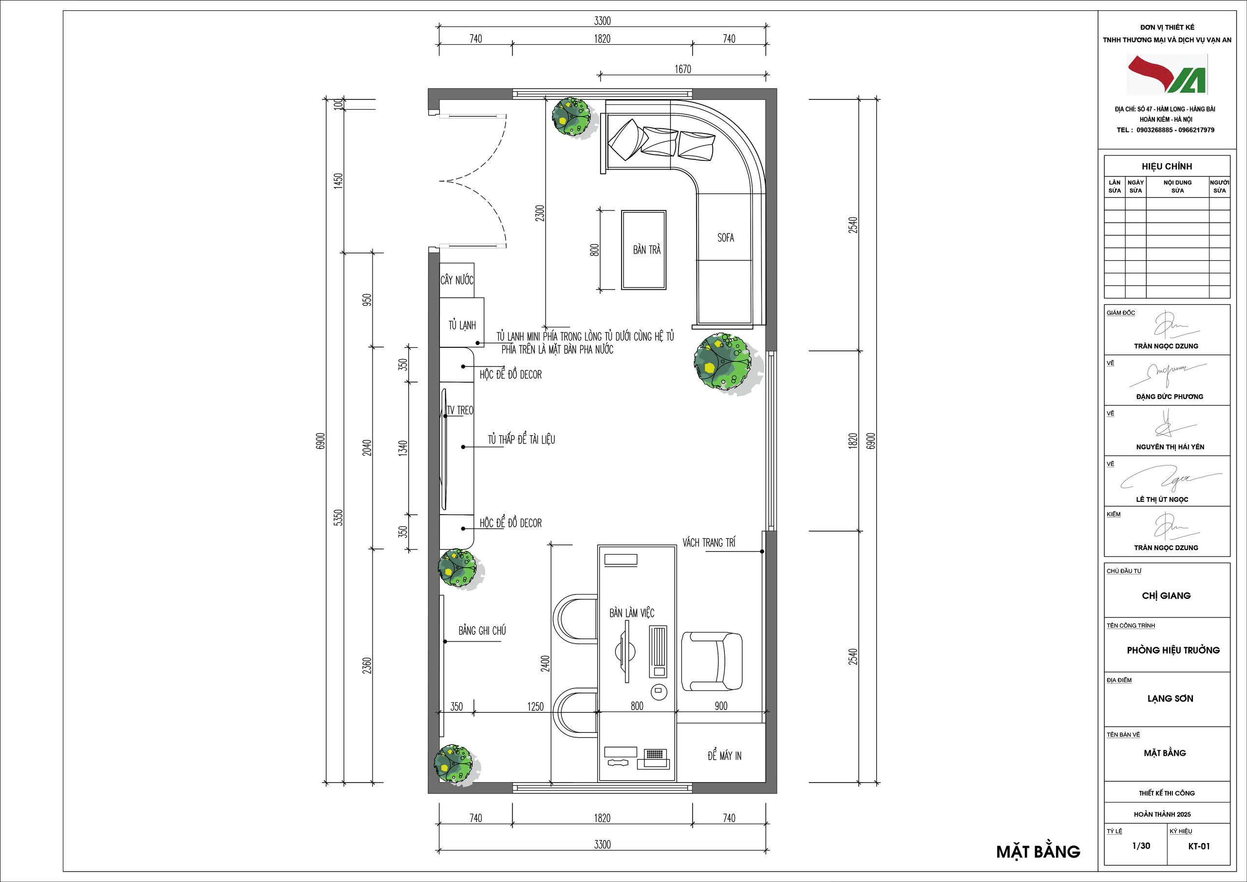
Mặt bằng bố trí nôi thất
Văn phòng
Trên đây là sơ lược về công trình thiết kế và thi công văn phòng tại Lạng Sơn. Hi vọng bài viết sẽ góp phần giúp quý bạn đọc hình dung về công việc thiết kế và thi công nội thất nói chung và về Vạn An Decor nói riêng.
Nếu quý khách hàng, các chủ đầu tư có nhu cầu thiết kế thi công nội thất đẹp hoặc tham khảo thêm các dự án khác của chúng tôi vui lòng liên hệ:
CÔNG TY TNHH THƯƠNG MẠI VÀ DỊCH VỤ VẠN AN
Trụ sở: 47 Hàm Long, Cửa Nam, Hà Nội.
Chi nhánh: D34A-11 Đường N22 – Sun Casa Central, Vĩnh Tân, Tp. Hồ Chí Minh
Liên hệ: 0903268885
Website: http://vanandecor.com/



